Beschrijving

Deze ruime woning in het centrum van Oudenbosch biedt heel veel mogelijkheden! Op de begane grond bevindt zich een grotendeels gelijkvloerse woning (voormalig winkelpand) van ca. 115 m2 met een eigen badkamer en keuken. Op de eerste verdieping bevindt zich een bovenwoning van ca. 75 m2 met daarbovenop nog een zolder. De woning biedt heel veel mogelijkheden maar vraagt ook nog behoorlijk wat werk, zoals het deels vervangen van de beglazing, isolatie en de keuken en badkamer op de begane grond dienen voorzien te worden van nieuwe vloerbalken.

Bijzonderheden:
- dubbele bewoning mogelijk.
- begane grond met 2 slaapkamers, een hele ruime woonkamer, een keuken en een badkamer.
- eerste verdieping met ook een ruime woonkamer, een slaapkamer, keuken en een badkamer.
- zolder met mogelijkheden voor een extra slaapkamer of kantoor.
- bestemming “centrum” je mag het gehele pand gebruiken om te wonen, maar je mag bijvoorbeeld ook de begane grond gebruiken voor een winkel
- heel veel mogelijkheden!

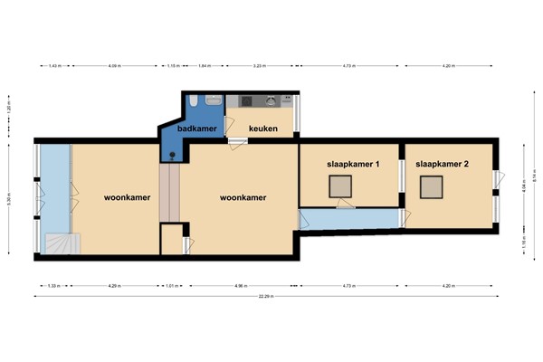
Indeling van de woning op de begane grond:
Entree:
Door de voorgevel en de indrukwekkende entree snap je direct waarom dit een gemeentelijk monument is. De entree biedt toegang tot de ruimte beneden en de trapopgang naar de eerste verdieping.

Woonkamer: 
Deze ruime woonkamer is opgesplitst in 22 m2 voor de verhoging en 28 m2 na de verhoging. De woonkamer biedt toegang tot de meterkast, een bergkast, de keuken en de hal naar de slaapkamers.

Keuken:
De gesloten keuken is voorzien van een keukenblok en dient als opstelplaats van de cv ketel en biedt toegang tot de badkamer.

Badkamer:
Deze geheel betegelde badkamer is voorzien van een douche, toilet en wastafel. De vloerbalken van de keuken en badkamer zijn (deels) in slechte staat, dit zal serieus aangepakt moeten worden.

Hal:
Deze hal aan de achterzijde biedt toegang tot 2 slaapkamers.

Slaapkamers:
Slaapkamer 1 heeft een oppervlakte van ca. 14 m2 en is voorzien van een lichtkoepel.
Slaapkamer 2 ligt aan de achterzijde van de woning, heeft een oppervlakte van ca. 17 m2 en biedt toegang tot de achterom.

Tuin:
Je kunt hier achterom maar van een tuin is geen sprake.


Indeling van de woning op de eerste verdieping:
Woonkamer:
De woonkamer (ca. 29 m2) geniet van veel lichtinval en biedt toegang tot de hal en de trapopgang naar zolder.

Hal:
De hal biedt toegang tot de halfopen keuken, de badkamer en slaapkamer 3.

Slaapkamer 3:
Deze slaapkamer bevindt zich aan de achterzijde van de woning en heeft een oppervlakte van ca. 18 m2.

Keuken:
Deze ruime tweede keuken biedt veel mogelijkheden qua indeling en biedt toegang tot het plat dak.

Badkamer:
Deze tweede badkamer is voorzien van een wastafel, toilet en een inloopdouche.

Zolder:
De zolder biedt nog mogelijkheden voor het maken van een vierde slaapkamer. De zolder dient als opstelplaats van de tweede cv ketel.
 
Het betreft een gemeentelijk monument, wil je weten wat dat voor jou als koper inhoudt, neem dan even contact met ons op. 


Deze verkoopdocumentatie is vrijblijvend, informatief en wijzigingen zijn voorbehouden. Hieraan kunnen geen rechten worden ontleend en zij dient slechts te worden gezien als een uitnodiging tot het doen van een bod of om in onderhandeling te treden. De Meetinstructie is gebaseerd op de NEN2580. De Meetinstructie is bedoeld om een meer eenduidige manier van meten toe te passen voor het geven van een indicatie van de gebruiksoppervlakte. De Meetinstructie sluit verschillen in meetuitkomsten niet volledig uit, door bijvoorbeeld interpretatieverschillen, afrondingen of beperkingen bij het uitvoeren van de meting. 
Daarbij accepteert Rademakers Makelaardij geen enkele aansprakelijkheid voor eventuele afwijkingen in de genoemde vierkante meters, wanneer u de aankoopprijs van de woning baseert op de genoemde vierkante meters adviseer ik u de woning zelf na te meten en in uw bod rekening te houden met eventuele afwijkingen.

Kenmerken