Beschrijving

Deze eindwoning beschikt over een ruime achtertuin met een eigen parkeerplek en mogelijkheden voor het plaatsen van een garage. De woning beschikt over een ruime woonkamer met een gescheiden zit- en eetgedeelte en 3 slaapkamers (4 mogelijk). Ondanks dat de woning niet gemoderniseerd is, voel je je hier direct thuis; de mooie plafonds en de deurlijsten zorgen samen voor een gezellig warme sfeer.

De woning ligt in een rustige straat aan de rand van het centrum, dichtbij openbaar vervoer, winkels en uitvalswegen. Met de fiets sta je binnen 4 minuten in het centrum van Roosendaal en binnen 5 minuten bij het treinstation.

Bijzonderheden:
- 110 m2 woonoppervlakte
- de sfeervolle afwerking (plafonds, deurlijsten)
- bijna geheel voorzien van rolluiken
- 4 slaapkamers mogelijk
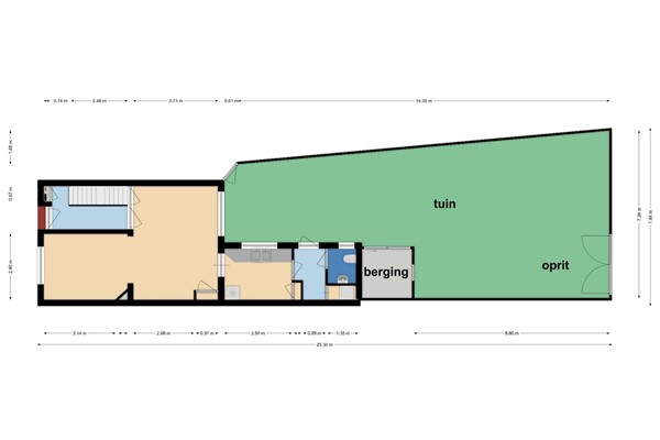
- de brede en diepe achtertuin met extra parkeergelegenheid

Indeling begane grond:
Entree:
De hal biedt toegang tot de woonkamer, de trapopgang naar de eerste verdieping en de meterkast.

Woonkamer:
De ruime woonkamer geniet van veel lichtinval door de grote ramen. De woonkamer is opgedeeld in een zit- en eetgedeelte en biedt toegang tot de keuken, de vaste kast en de hal.

Keuken:
De keuken is voorzien van een keukenblok in rechte opstelling met een kunststof blad en beschikt over een afzuigkap, een losse koelkast, een gaskookplaat, een rvs dubbele wasbak en een 15 liter Daalderop close-in boiler. De keuken biedt toegang tot de vaste kast, het halletje aan de achterzijde en de woonkamer.

Hal:
Deze entree aan de achterzijde biedt toegang tot het toilet, de vaste kast en de achtertuin.

Indeling eerste verdieping:
Overloop:
De overloop biedt toegang tot 2 slaapkamers, de badkamer en de trapopgang naar de tweede verdieping.

Slaapkamers:
Slaapkamer 1: deze slaapkamer bevindt zich aan de voorzijde van de woning en heeft een oppervlakte van ca. 9 m².
Slaapkamer 2: deze ruime slaapkamer (voorheen 2 slaapkamers) is eventueel weer op te delen in 2 slaapkamers. De slaapkamer heeft een oppervlakte van ca. 17 m² en biedt toegang tot het balkon.

Badkamer:
De badkamer is voorzien van een douche en een wastafel. De badkamer heeft een oppervlakte van ca. 4 m².

Indeling tweede verdieping:
Slaapkamer 3:
Deze ruime kamer heeft een vloeroppervlakte van ca. 34 m², is voorzien van 2 dakramen en dient als opstelplaats voor de cv-ketel (Intergas, bouwjaar 2019).

Tuinen:
De achtertuin is op het oosten gelegen, is deels bestraat en voorzien van borders, kunstgras en een buitenberging van ca. 5 m². De tuin is toegankelijk vanaf de straatzijde, via de zijpoort en via de achterzijde. De tuin biedt veel ruimte voor het parkeren van een auto of het plaatsen van een garage.


Deze verkoopdocumentatie is vrijblijvend, informatief en wijzigingen zijn voorbehouden. Hieraan kunnen geen rechten worden ontleend en zij dient slechts te worden gezien als een uitnodiging tot het doen van een bod of om in onderhandeling te treden. De Meetinstructie is gebaseerd op de NEN2580. De Meetinstructie is bedoeld om een meer eenduidige manier van meten toe te passen voor het geven van een indicatie van de gebruiksoppervlakte. De Meetinstructie sluit verschillen in meetuitkomsten niet volledig uit, door bijvoorbeeld interpretatieverschillen, afrondingen of beperkingen bij het uitvoeren van de meting. 
Daarbij accepteert Rademakers Makelaardij geen enkele aansprakelijkheid voor eventuele afwijkingen in de genoemde vierkante meters, wanneer u de aankoopprijs van de woning baseert op de genoemde vierkante meters adviseer ik u de woning zelf na te meten en in uw bod rekening te houden met eventuele afwijkingen.

Kenmerken