Beschrijving

Deze ruime bovenwoning is rustig gelegen in de Emmastraat, op slechts vijf minuten lopen van het centrum. Het appartement is voorzien van drie slaapkamers en een royaal dakterras van ca. 26 m². Het oorspronkelijke pand dateert uit 1906 en in gebruik geweest als schoolgebouw.

Bijzonderheden:
- ca. 105 m2 woonoppervlakte
- 3 slaapkamers
- het ruime dakterras van ca. 26 m²
- de locatie, rustig gelegen nabij het centrum
- VvE bijdrage: € 260,- (tot en met dit jaar verhoogd ivm vervanging van het dak)


Indeling:
Op de begane grond bevindt zich de gezamenlijke entree van de twee bovenwoningen. Via de voordeur betreed je de gezamenlijke traphal die toegang biedt tot de meterkast, de bergkast en de trapopgang naar de eerste verdieping. Hier hangen ook de omvormers van de zonnepanelen, het appartement is voorzien van 8 eigen zonnepanelen. De trap is voorzien van een traplift, ga je hier geen gebruik van maken dan wordt deze door de verkopers gedemonteerd. Bovenaan de trap geeft de overloop toegang tot het appartement.

Entree:
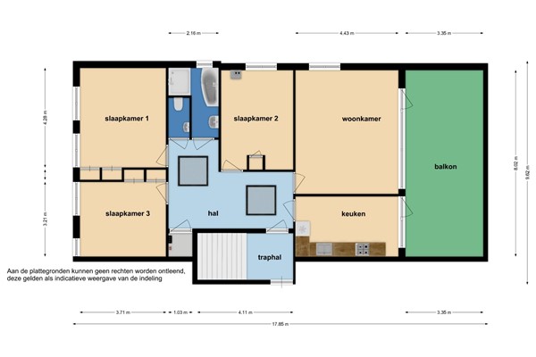
In het appartement biedt de ruime hal toegang tot alle ruimten, de hal is voorzien van lichtkoepels en geniet daardoor van een aangename lichtinval.

Woonkamer:
De woonkamer is aan de achterzijde gelegen en biedt door de grote raampartij een mooi uitzicht over Roosendaal richting het oosten. Via de loopdeur kun je vanuit de woonkamer het dakterras betreden.

Keuken:
De gesloten keuken is voorzien van een keukenblok in L-vorm. De keuken is voorzien van een 4-pits gas kookplaat, een afzuigkap, dubbele rvs spoelbak en een losse koel- vriescombinatie. Ook de keuken biedt toegang tot het dakterras via de loopdeur.

Balkon:
Uniek aan dit appartement is het ruime balkon, wat door zijn afmetingen een kleine tuin genoemd kan worden. Het balkon heeft een oppervlakte van ca. 26 m² en is voorzien van beplanting, tegels en een mooi uitzicht.

Slaapkamers:
Slaapkamer 1 is aan de voorzijde van het pand gelegen en heeft een oppervlakte van ca. 17 m² inclusief de vaste kasten.
Slaapkamer 2 is aan de zijkant gelegen, heeft een oppervlakte van ca. 13 m² en dient tevens als opstelplaats van de cv-ketel (Intergas hre, geplaatst in 2025).
Slaapkamer 3 is aan de voorzijde van het pand gelegen en heeft een oppervlakte van ca. 13 m² inclusief de vaste kasten.

Badkamer:
De badkamer is efficiënt ingericht met een ruime douche, een ligbad en een wastafel.

Toilet:
Het toilet is voorzien van een zwevende pot en een wasbakje.

Bergkast:
De hal biedt toegang tot een ruime bergkast.

Deze verkoopdocumentatie is vrijblijvend, informatief en wijzigingen zijn voorbehouden. Hieraan kunnen geen rechten worden ontleend en zij dient slechts te worden gezien als een uitnodiging tot het doen van een bod of om in onderhandeling te treden. De Meetinstructie is gebaseerd op de NEN2580. De Meetinstructie is bedoeld om een meer eenduidige manier van meten toe te passen voor het geven van een indicatie van de gebruiksoppervlakte. De Meetinstructie sluit verschillen in meetuitkomsten niet volledig uit, door bijvoorbeeld interpretatieverschillen, afrondingen of beperkingen bij het uitvoeren van de meting. 
Daarbij accepteert Rademakers Makelaardij geen enkele aansprakelijkheid voor eventuele afwijkingen in de genoemde vierkante meters, wanneer u de aankoopprijs van de woning baseert op de genoemde vierkante meters adviseer ik u de woning zelf na te meten en in uw bod rekening te houden met eventuele afwijkingen.

Kenmerken