Beschrijving

We nemen u graag mee door deze verrassend ruime en karakteristieke woning met dubbele bewoning en heel veel mogelijkheden zoals werk aan huis of mantelzorg. Met maar liefst 180 m² woonoppervlakte is het een huis waar sfeer en functionaliteit hand in hand gaan en waar u de vrijheid heeft om elke ruimte naar wens te benutten. Met vier slaapkamers, twee woonkamers en twee badkamers is deze woning ook geschikt voor dubbele bewoning. Verder beschikt de woning over een prachtige open keuken, een garage, een dakterras en een zonnige achtertuin.

Bijzonderheden
•	Verrassend ruime en karakteristieke woning
•	Dubbele bewoning aanwezig
•	Totale woonoppervlakte van ruim 180 m²
•	Vier slaapkamers
•	Twee badkamers
•	Lichte woonkamer(s)
•	Moderne, instapklare leefkeuken
•	Zonnig dakterras
•	Garage aanwezig
•	Mogelijkheden voor een praktijk aan huis
•	Zonnige, onderhoudsvriendelijke achtertuin
•	Gelegen in een fijne buurt met alle voorzieningen nabij


De Wilhelminastraat is gelegen in een prettige en levendige buurt van Roosendaal waar voorzieningen altijd binnen handbereik zijn. Scholen, kinderopvang en sportclubs bevinden zich op korte afstand, wat de locatie ideaal maakt voor gezinnen. Voor de dagelijkse boodschappen kunt u terecht bij diverse supermarkten in de nabije omgeving en ook het centrum van Roosendaal is eenvoudig bereikbaar. Openbaar vervoer, waaronder bushaltes en het treinstation, ligt op korte afstand en via de nabijgelegen uitvalswegen bent u snel onderweg richting Breda, Bergen op Zoom of Antwerpen. Een fijne woonomgeving waar gemak en bereikbaarheid samenkomen.

Entree:
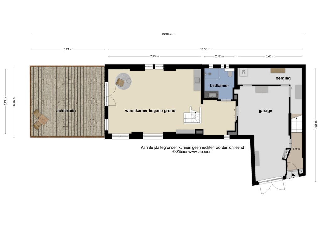
U betreedt de woning aan de straatzijde, waar u tevens toegang heeft tot de garage. In de straat is ruime parkeergelegenheid aanwezig. Eenmaal binnen komt u in de entree, waar voldoende plek is voor een kapstok of opbergmeubel. Vanuit hier heeft u toegang tot de garage en de trap die u naar de eerste verdieping leidt, waarbij de indeling logisch en praktisch aanvoelt. de garage biedt toegang tot de tweede woonkamer, de tweede badkamer en de achtertuin op de begane grond.

Indeling eerste verdieping:
Via twee trappen bereikt u de eerste verdieping. Hier vindt u een royale woonkamer met leefkeuken, een slaapkamer en een zonnig dakterras. Een verdieping die uitnodigt tot samenkomen en genieten.

Woonkamer:
De woonkamer op deze verdieping vormt het centrale punt en wordt gekenmerkt door een prachtige lichtinval. Hier is volop ruimte voor een gezellige zithoek waar u kunt ontspannen. De zichtbare houten draagbalken geven de ruimte een warme, karakteristieke uitstraling en zorgen voor een unieke sfeer die u niet snel ergens anders zult vinden.

Keuken:
De riante open keuken is een droom voor iedere kookliefhebber, je staat hier midden in het kloppend hart voor de woning te koken voor jouw gasten. Het riante kookeiland is voorzien van een spoelbak, vaatwasser en veel opbergruimte. Langs de wand vindt u een aanrecht met gasfornuis, ingebouwde oven en afzuigkap. Daarnaast is er een ingebouwde ovencombinatie, koelkast en nog meer bergruimte. De keuken is volledig instapklaar en biedt bovendien voldoende ruimte voor een grote eettafel, waardoor koken en samenzijn hier centraal staan.

Overloop en gang:
De ruime overloop en gang verbinden de woonkamer met het dakterras en de slaapkamer.

Dakterras:
Het zonnige dakterras op deze verdieping is een heerlijke plek om buiten te zitten. Hier geniet u in alle rust van de zon.

Slaapkamer 1:
De slaapkamer op deze verdieping is ruim opgezet en biedt plaats aan een bed, bureau en kasten. Dankzij de veelzijdigheid van de ruimte is deze kamer ook uitstekend te gebruiken als hobbykamer of thuiskantoor, geheel naar uw eigen wensen.

Indeling tweede verdieping:
Via een vaste trap bereikt u de tweede verdieping. Op deze verdieping bevinden zich nog eens drie slaapkamers en een tweede badkamer, wat deze woning uitermate geschikt maakt voor grotere gezinnen.

Slaapkamers:
De drie slaapkamers op deze verdieping grenzen aan de overloop en zijn licht en ruim opgezet. Elke kamer biedt voldoende ruimte voor een bed, bureau en kastruimte. Dankzij de prettige lichtinval voelen de kamers open en comfortabel aan. Uiteraard zijn de ruimtes multi-inzetbaar en kunt u desgewenst één of meerdere kamers inrichten als hobby-, werk- of logeerkamer.

Badkamer:
De tweede badkamer is gelegen aan de overloop en is keurig afgewerkt. De ruimte is volledig betegeld en voorzien van een ligbad, douchecabine, wastafel en een zwevend toilet. Een complete en comfortabele badkamer waar u de dag ontspannen begint of afsluit.

Indeling begane grond:
Middels de overloop op de 1ste verdieping en de begane grond komt u in de tweede woonkamer van deze unieke woning.

Woonkamer:
De woonkamer vormt het kloppend hart van de begane grond. U geniet hier van een open indeling en een prettige hoeveelheid daglicht. De stenen vloer zorgt voor een moderne en strakke uitstraling, terwijl de ruimte groot genoeg is om een comfortabele zithoek te creëren. Dankzij de verbinding met de tuin loopt binnen moeiteloos over in buiten. Het aanwezige kleine keukentje maakt deze verdieping extra praktisch en veelzijdig.

Badkamer:
Op de begane grond bevindt zich een volledig gemoderniseerde badkamer. De ruimte is stijlvol betegeld en voorzien van een zwevend toilet, wastafel en een douchecabine. Een nette en comfortabele badkamer die volledig aansluit bij het hedendaagse wooncomfort.

Garage:
De garage grenst direct aan de woning en biedt volop mogelijkheden. U kunt hier uw auto parkeren, maar ook fietsen stallen of een extra werkruimte creëren. Bij dubbel bewoning kan de garage ook dienen als een zelfstandige entree. 

Buitenruimte
De zonnige achtertuin is volledig voorzien van kunststof vlonderplanken en biedt veel zonuren. Hier is voldoende ruimte voor het creëren van een gezellig terras waar u kunt genieten van lange zomeravonden. Een onderhoudsvriendelijke buitenruimte waar ontspanning centraal staat.

Bijzonderheden
•	Verrassend ruime en karakteristieke woning
•	Dubbele bewoning aanwezig
•	Totale woonoppervlakte van ruim 180 m²
•	Vier slaapkamers
•	Twee badkamers
•	Lichte woonkamer(s)
•	Moderne, instapklare leefkeuken
•	Zonnig dakterras
•	Garage aanwezig
•	Mogelijkheden voor een praktijk aan huis
•	Zonnige, onderhoudsvriendelijke achtertuin
•	Gelegen in een fijne buurt met alle voorzieningen nabij

Deze verkoopdocumentatie is vrijblijvend, informatief en wijzigingen zijn voorbehouden. Hieraan kunnen geen rechten worden ontleend en zij dient slechts te worden gezien als een uitnodiging tot het doen van een bod of om in onderhandeling te treden. De Meetinstructie is gebaseerd op de NEN2580. De Meetinstructie is bedoeld om een meer eenduidige manier van meten toe te passen voor het geven van een indicatie van de gebruiksoppervlakte. De Meetinstructie sluit verschillen in meetuitkomsten niet volledig uit, door bijvoorbeeld interpretatieverschillen, afrondingen of beperkingen bij het uitvoeren van de meting. 
Daarbij accepteert Rademakers Makelaardij geen enkele aansprakelijkheid voor eventuele afwijkingen in de genoemde vierkante meters, wanneer u de aankoopprijs van de woning baseert op de genoemde vierkante meters adviseer ik u de woning zelf na te meten en in uw bod rekening te houden met eventuele afwijkingen.

Kenmerken