Beschrijving
Deze ruime vrijstaande woning is op een rustig pleintje gelegen en biedt veel ruimte, zowel in als buiten de woning. De rondom gelegen tuin is met veel zorg aangelegd en wordt ook met veel liefde onderhouden. De tuin beschikt over een grote verscheidenheid aan struiken, bloemen en planten.
Binnen beschikt de woning over 4 hele ruime slaapkamers, een hele ruime woonkamer, keuken, bijkeuken en een inpandige garage.
De woning ligt in een rustige woonwijk met veel groen, recreatie- en sportgebieden en daarnaast niet ver van het natuurgebied Visdonk bos. Op loopafstand vind je bushaltes, een winkelcentrum, meerdere scholen en het mooie bos, natuurgebied Visdonk. Met de fiets sta je binnen 10 minuten in het centrum van Roosendaal en in 15 minuten bij het treinstation.
De ruime oprit biedt plek aan 2 auto's, in de ruimte garage past een auto en op het pleintje is altijd voldoende parkeerplek.
Bijzonderheden:
- 160 m2 woonoppervlakte
- 4 ruime slaapkamers (kleinste 11 m2)
- inpandige garage van ca. 26 m2 en een lange oprit
- zeer ruime woonkamer met een gesloten keuken
- een hele ruime en met veel liefde aangelegde en verzorgde rondom gelegen tuin
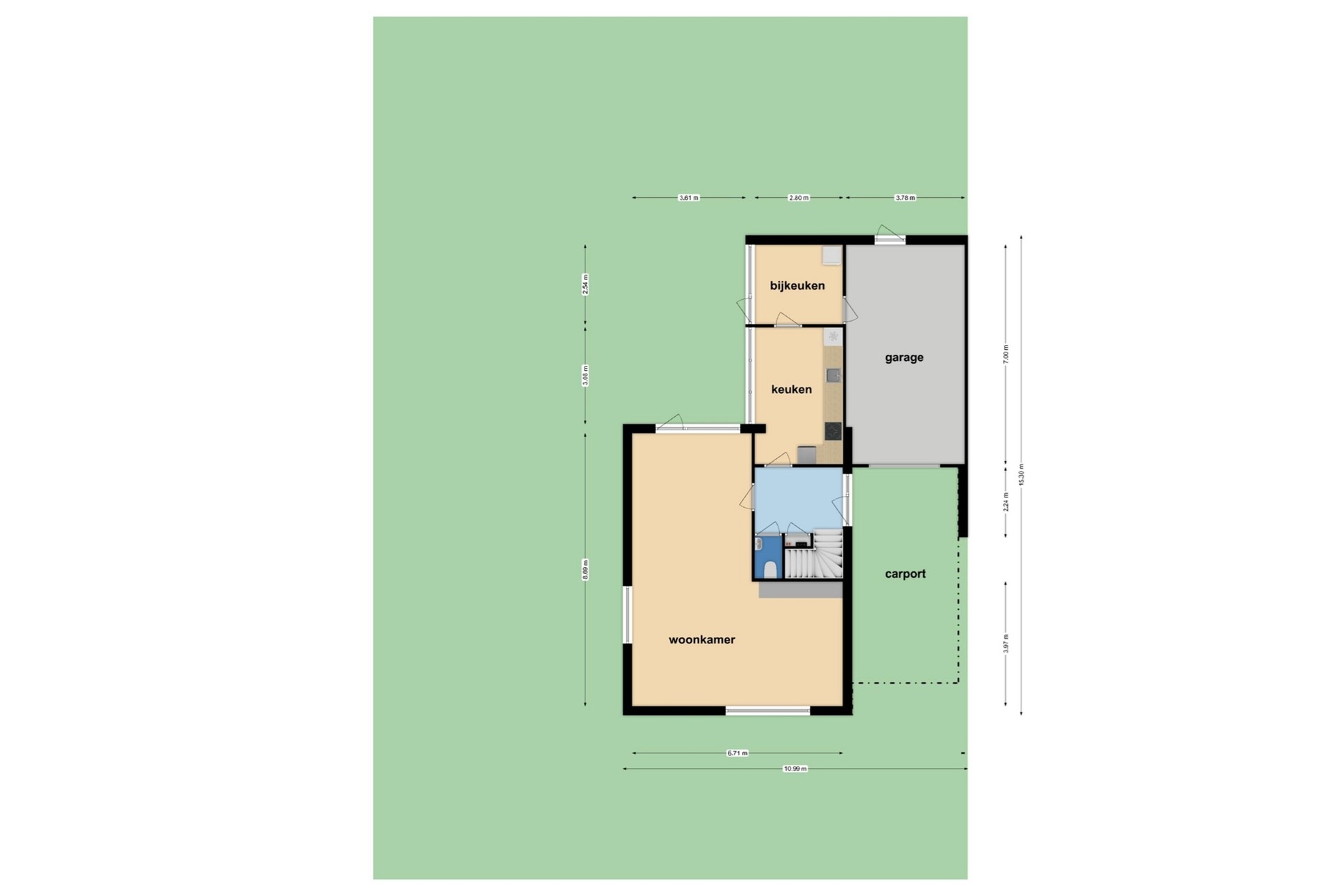
Indeling begane grond:
Entree:
Hal/entree welke toegang geeft tot de woonkamer, de keuken, het toilet, de meterkast en de trapopgang naar de eerste verdieping.
Woonkamer:
De zeer ruime woonkamer (ca. 45 m2.) geniet van veel lichtinval door de grote ramen en is voorzien van een open haard. De woonkamer is ideaal in te richten met een aparte zit- en eethoek. De woonkamer biedt toegang tot de achtertuin.
Keuken:
De gesloten keuken is voorzien van een keukenblok in rechte opstelling en is voorzien van de volgende inbouwapparatuur: een koelkast, 4 pits keramische kookplaat, afzuigkap, oven, magnetron, vaatwasser en een rvs spoelbak. De keuken is voorzien van elektrische vloerverwarming.
Bijkeuken:
De bijkeuken biedt toegang tot de achtertuin en de garage. De bijkeuken dienst als opstelplaats voor de wasmachine en droger.
Garage:
De ruime garage biedt toegang tot de oprit en de achtertuin. De garage heeft een oppervlakte van ca. 26 m2.
Indeling eerste verdieping:
Overloop:
De overloop geeft toegang tot 3 slaapkamers, de badkamer en de trapopgang naar de tweede verdieping.
Slaapkamers:
Slaapkamer 1: deze ruime slaapkamer bevindt zich aan de achterzijde van de woning en heeft een oppervlakte van ca. 14 m2.
Slaapkamer 2: deze hele ruime slaapkamer bevindt zich aan de voorzijde van de woning en heeft een oppervlakte van ca. 19 m2.
Slaapkamer 3: (geen foto aanwezig) deze slaapkamer bevindt zich ook aan de voorzijde van de woning en heeft een oppervlakte van ca. 11 m2.
Badkamer:
De ruime badkamer is voorzien van een douche, toilet, dubbele wastafel en een ligbad. De badkamer biedt toegang tot het platte dak van de keuken.
Indeling tweede verdieping:
Overloop:
De overloop geeft toegang tot slaapkamer 4 en dient als opstelplaats van de cv ketel (Remeha Calenta, bouwjaar 2017).
Slaapkamer 4:
Deze ruime slaapkamer heeft een oppervlakte van ca. 16 m2 en biedt toegang tot de bergruimten.
Bergruimten:
Aan weerszijden van de slaapkamer bevindt zich een bergruimte met een oppervlakte van ca. 8 m2.
Tuinen:
De rondom gelegen tuin beschikt over een grote verscheidenheid aan struiken, bloemen en planten. Het grootste gedeelte van de tuin is op het Westen gelegen. Achter de garage is een overkapping gemaakt van ca. 6 m2.
Deze verkoopdocumentatie is vrijblijvend, informatief en wijzigingen zijn voorbehouden. Hieraan kunnen geen rechten worden ontleend en zij dient slechts te worden gezien als een uitnodiging tot het doen van een bod of om in onderhandeling te treden. De Meetinstructie is gebaseerd op de NEN2580. De Meetinstructie is bedoeld om een meer eenduidige manier van meten toe te passen voor het geven van een indicatie van de gebruiksoppervlakte. De Meetinstructie sluit verschillen in meetuitkomsten niet volledig uit, door bijvoorbeeld interpretatieverschillen, afrondingen of beperkingen bij het uitvoeren van de meting.