Beschrijving
Het is heerlijk rustig wonen in deze leuke tussenwoning op een kindvriendelijke locatie en op loopafstand van het Tolbergcentrum, een basisschool en openbaar vervoer. De woning beschikt over 3 slaapkamers, een open zolder met mogelijkheid voor een vierde slaapkamer, een ruime woonkamer en mooie achtertuin.
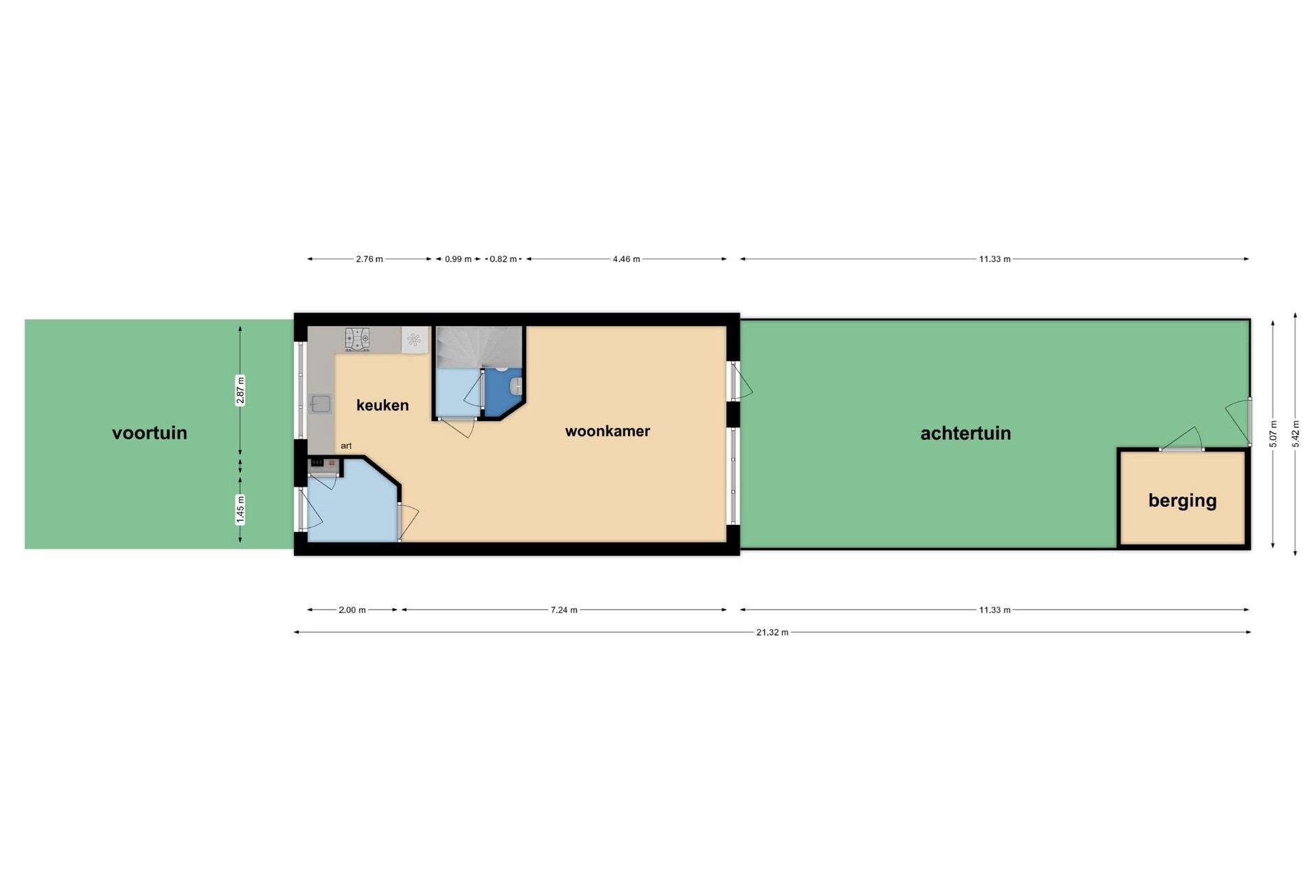
Indeling begane grond:
Hal/Entree:
De ruime entree geeft toegang tot de woonkamer en de meterkast.
Keuken:
De half open keuken is voorzien van een keukenblok in L vorm en is voorzien van de volgende inbouwapparatuur: een koelkast, vriezer, vaatwasser, rvs spoelbak, 4 pits gas kookplaat, oven en een afzuigkap.
Woonkamer:
De ruime woonkamer geniet van veel lichtinval, heeft een oppervlakte van ca. 27 m2 en is net zoals de keuken en de hal voorzien van een laminaatvloer.
De woonkamer geeft toegang tot de achtertuin en de hal welke toegang geeft tot het toilet en de trapopgang naar de eerste verdieping.
Indeling eerste verdieping:
Overloop:
De overloop biedt toegang tot 3 slaapkamers, de badkamer en de trapopgang naar de tweede verdieping.
Slaapkamers:
Slaapkamer 1 is aan de achterzijde van de woning gelegen en heeft een oppervlakte van ca. 8 m2.
Slaapkamer 2 is ook aan de achterzijde van de woning gelegen en heeft een oppervlakte van ca. 14 m2.
Slaapkamer 3 is aan de voorzijde van de woning gelegen en heeft een oppervlakte van ca. 9 m2.
Badkamer:
De gemoderniseerde badkamer is voorzien van een ruime douche, een wastafelmeubel en een dakraam
Indeling tweede verdieping:
Slaapkamer 4:
De zolder is nu nog geheel open, door een wand te plaatsen is er simpel een vierde slaapkamer te realiseren en een voorzolder. De zolder biedt plaats aan de wasmachine, de cv-ketel (Vaillant, bouwjaar 2016) en de afzuiging. De vloeroppervlakte is ca. 18 m2. Door een groter dakraam te plaatsen vergroot je de woonoppervlakte van deze woning met ca. 12 m2.
Tuin:
De achtertuin is grotendeels bestraat, gelegen op het Noorden en voorzien van een berging en overkapping. De berging is voorzien van elektra en heeft een oppervlakte van ca. 5 m2. De achtertuin is te bereiken via de woonkamer en de achterom. De tuin heeft een oppervlakte van ca. 54 m2 excl. de overkapping en schuur.
De voortuin is gelegen op het Zuiden en heeft een oppervlakte van ca. 19 m2. XXXXXXX
Deze verkoopdocumentatie is vrijblijvend, informatief en wijzigingen zijn voorbehouden. Hieraan kunnen geen rechten worden ontleend en zij dient slechts te worden gezien als een uitnodiging tot het doen van een bod of om in onderhandeling te treden. De Meetinstructie is gebaseerd op de NEN2580. De Meetinstructie is bedoeld om een meer eenduidige manier van meten toe te passen voor het geven van een indicatie van de gebruiksoppervlakte. De Meetinstructie sluit verschillen in meetuitkomsten niet volledig uit, door bijvoorbeeld interpretatieverschillen, afrondingen of beperkingen bij het uitvoeren van de meting.