Beschrijving
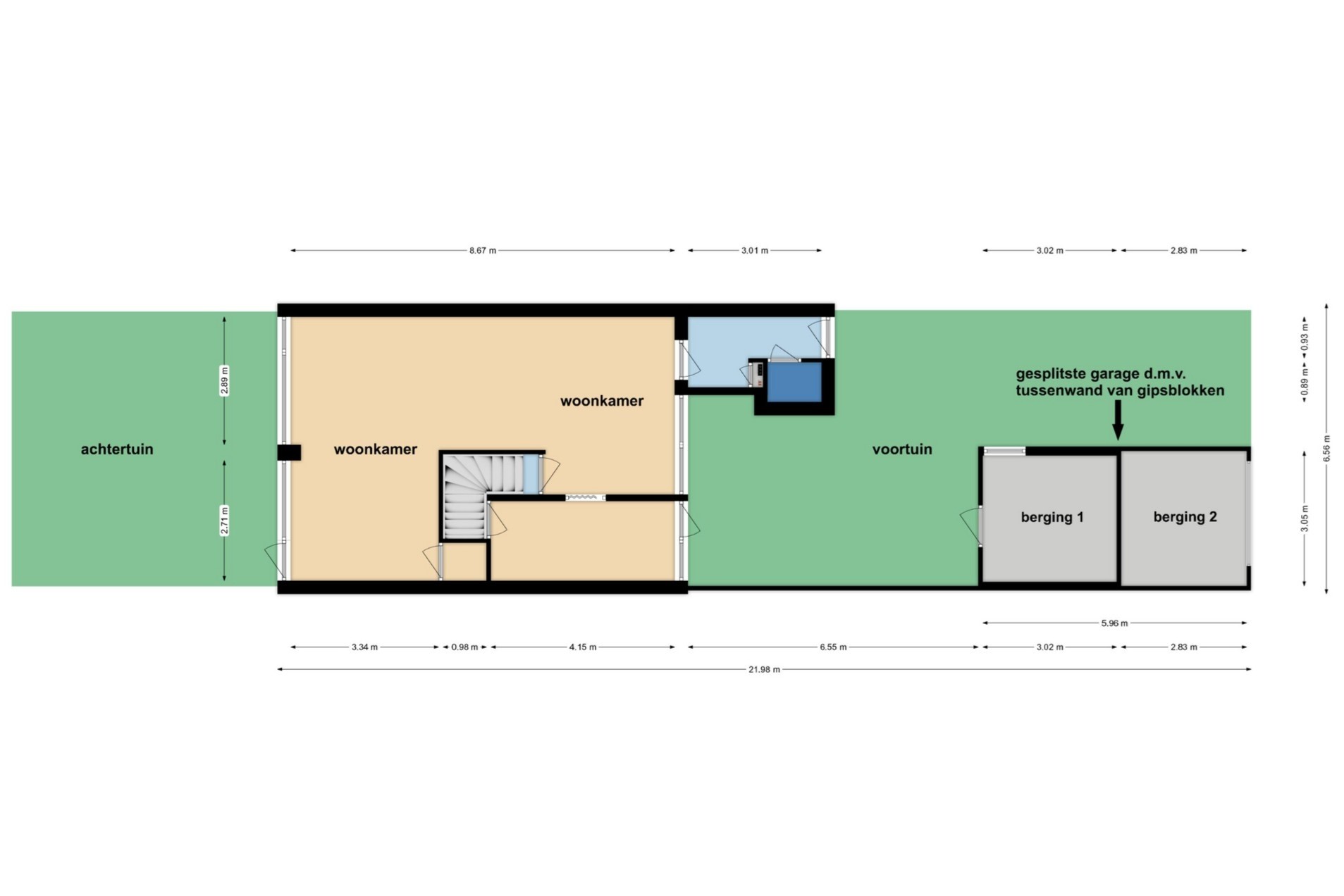
Deze ruime tussenwoning beschikt over 4 ruime slaapkamers, een hele ruime woonkamer en een garage. De indeling van de tuinen is wat anders dan dat je gewend bent, aan de voorzijde vind je een ruime en op het zuiden gelegen tuin die omsloten wordt door de woning en de garage. De achtertuin ligt aan het grote speelveld achter de rij woningen, ideaal voor kinderen om lekker buiten te spelen. De garage is momenteel voorzien van een tussenwandje waardoor 2 bergingen zijn ontstaan. Liever je auto in de garage ? Geen probleem dit wandje van gipsblokken is makkelijk te verwijderen.
De woning ligt in een rustige kindvriendelijke woonwijk met veel groen, recreatie-, sportgebieden en bos. Op loopafstand vind je bushaltes, een winkelcentrum, meerdere scholen en het mooie bos, natuurgebied Visdonk. Met de fiets sta je binnen 10 minuten in het centrum van Roosendaal en in 15 minuten bij het treinstation.
Bijzonderheden:
- 123 m2 woonoppervlakte
- 16 m2 overige oppervlakte (delen van de zolder die wel hoger zijn dan 1,5 meter)
- kunststof kozijnen met HR++ glas, alleen het raam en deur in de garage zijn nog hout
- garage, momenteel ingericht als 2 bergingen d.m.v. een gipsen tussenwand
- ruim opgezette woning met 4 grote slaapkamers en veel bergruimte
Indeling begane grond:
Deze woning is te betreden middels de hal en de keuken aan de voorzijde:
De hal biedt toegang geeft tot de woonkamer, het toilet en de meterkast.
Woonkamer:
De hele ruime woonkamer in u vorm geniet val veel lichtinval door de grote ramen. De woonkamer heeft een oppervlakte van ca. 39 m2 en biedt toegang tot de achtertuin, de vaste kast, de keuken en het halletje met de trapopgang naar de eerste verdieping.
Keuken:
De keuken is voorzien van een keukenblok in rechte opstelling en is voorzien van een kunststof blad, een losse oven met inductie kookplaat, een afzuigkap, een rvs spoelbak en een losse koelkast. De keuken dient eveneens als opstelplaats voor de wasmachine en biedt toegang tot de voortuin, de woonkamer en de trapkast.
Indeling eerste verdieping:
Overloop:
De overloop geeft toegang tot 3 slaapkamers, de badkamer, de vaste kast en de trapopgang naar de tweede verdieping.
Slaapkamers:
Slaapkamer 1: deze slaapkamer bevindt zich aan de achterzijde van de woning en heeft een oppervlakte van ca. 10 m2.
Slaapkamer 2: ook deze slaapkamer bevindt zich aan de achterzijde van de woning en heeft een oppervlakte van ca. 12 m2 (exclusief de vaste kast).
Slaapkamer 3: deze slaapkamer bevindt zich aan de voorzijde van de woning en heeft een oppervlakte van ca. 12 m2. (exclusief de vaste kast).
Badkamer:
De ruime badkamer is voorzien van een douche, toilet, wastafel, toilet en een ligbad.
Indeling tweede verdieping:
Voorzolder:
De voorzolder biedt heel veel bergruimte, toegang tot een berging (kleine slaapkamer op de foto), slaapkamer 4 en dient als opstelplaats voor de cv ketel (Nefit uit 2020).
Berging:
De berging aan de voorzijde is voorzien van een dakraam en wordt gebruikt als extra slaapkamer.
Slaapkamer 4:
Deze ruime slaapkamer is voorzien van een dakkapel dat zorgt voor veel lichtinval. De slaapkamer heeft een vloeroppervlakte van ca. 14 m2!
Tuinen:
De achtertuin is op het noorden gelegen, is grotendeels bestraat en heeft een oppervlakte van ca. 37 m2. Achter de achtertuin ligt een groot grasveld met recent geplaatste speeltoestellen.
De voortuin is op het zuiden gelegen en heeft een oppervlakte van ca. 50 m2. Je hebt hier toegang tot de voordeur, de keukendeur en de loopdeur van de garage/berging.
Deze verkoopdocumentatie is vrijblijvend, informatief en wijzigingen zijn voorbehouden. Hieraan kunnen geen rechten worden ontleend en zij dient slechts te worden gezien als een uitnodiging tot het doen van een bod of om in onderhandeling te treden. De Meetinstructie is gebaseerd op de NEN2580. De Meetinstructie is bedoeld om een meer eenduidige manier van meten toe te passen voor het geven van een indicatie van de gebruiksoppervlakte. De Meetinstructie sluit verschillen in meetuitkomsten niet volledig uit, door bijvoorbeeld interpretatieverschillen, afrondingen of beperkingen bij het uitvoeren van de meting.