Beschrijving
Aan de toegangsweg van Zegge staat deze verrassend ruime en sfeervolle woning, die direct opvalt door zijn complete indeling en fraaie afwerking. Met een slaapkamer en badkamer op de begane grond, een royale woonkeuken en twee slaapkamers op de eerste verdieping biedt deze woning volop comfort en flexibiliteit voor diverse woonwensen.
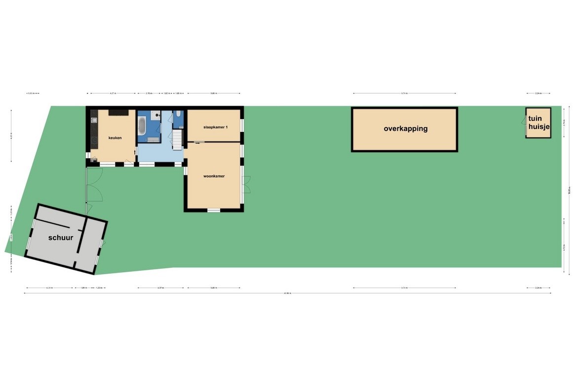
De zonnige en fraai aangelegde tuin vormt een absoluut pluspunt. Dankzij de riante overkapping kun je hier vrijwel het hele jaar door genieten van het buitenleven. Of het nu gaat om lange zomeravonden, gezellige etentjes of een ontspannen moment in alle rust: deze tuin biedt privacy en comfort.
Zegge is een gemoedelijk dorp met een prettige woonomgeving, gunstig gelegen ten opzichte van uitvalswegen en omliggende plaatsen. Je woont hier rustig, terwijl dagelijkse voorzieningen en belangrijke verbindingswegen binnen handbereik zijn.
Bijzonderheden:
- Energielabel C
- Circa 132 m² woonoppervlakte
- Slaapkamer en badkamer op de begane grond
- Gedeeltelijk voorzien van airconditioning en vloerverwarming
- Grotendeels verbouwd en gerenoveerd in 2018/2019
- Royale woonkeuken met luxe en zeer compleet keukenblok
- Fraaie badkamer
- Zonnige, diepe achtertuin met riante overkapping
- Oprit met parkeergelegenheid voor meerdere auto’s
- Schuur met eigen huisnummer (68)
- Gelegen aan de toegangsweg vanaf de A58 richting Zegge en het spoor
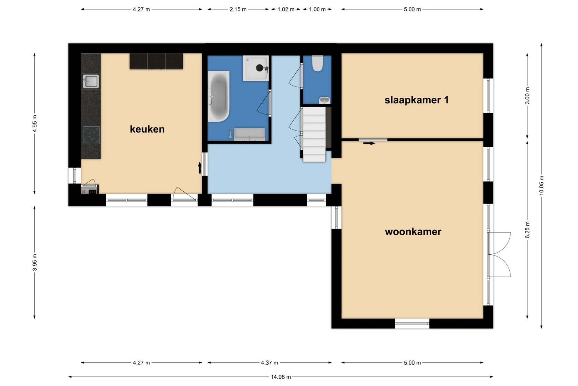
Indeling begane grond:
De woning is te betreden via zowel de keukendeur als de woonkamer aan de tuinzijde.
Woonkeuken:
Bij binnenkomst ervaar je direct de unieke sfeer van deze woning. De houten balken, het zichtbare metselwerk en het stijlvolle keukenblok zorgen samen voor een warme en karaktervolle uitstraling. Een plek waar koken en samenzijn centraal staan.
De keuken is uitgerust met een recht keukenblok met composiet werkblad en een kastenwand met hoogwaardige inbouwapparatuur, waaronder een vaatwasser, RVS-spoelbak en het indrukwekkende Richmond-fornuis met inductiekookplaat. Daarnaast zijn er een koelkast, vriezer, magnetron en koffiemachine aanwezig.
Woonkamer:
De ruime woonkamer is ontworpen met een optimaal zicht op de tuin. Dankzij de grote raampartijen en openslaande tuindeuren is er veel lichtinval en een fijne verbinding met buiten. Vanuit de woonkamer is tevens de slaapkamer op de begane grond bereikbaar.
Slaapkamer 1 op de begane grond:
Een comfortabele en ruime slaapkamer met uitzicht op de achtertuin, ideaal voor gelijkvloers wonen of als werkkamer.
Badkamer en toilet:
De luxe badkamer is compleet uitgevoerd met een ruime douche, ligbad en dubbele wastafel. Het separate toilet is voorzien van een zwevend toilet en fonteintje.
Gang en wasruimte:
In de gang bevinden zich de trapopgang naar de eerste verdieping en een praktische wasruimte onder de trap.
Eerste verdieping:
De overloop biedt toegang tot twee slaapkamers en vaste kastruimte.
Slaapkamer 2:
Deze slaapkamer heeft een oppervlakte van ca. 24 m² is aan de voorzijde van de woning gelegen en voorzien van airconditioning.
Slaapkamer 3:
Deze slaapkamer heeft een oppervlakte van circa 12 m² en is eveneens voorzien van airconditioning. Hier bevindt zich tevens het luik naar de cv-installatie (Remeha Avanta, 2015).
Buitenruimte:
De diepe achtertuin van circa 490 m² (exclusief zij- en voortuin) is fraai aangelegd met terrassen, groenvoorziening, gras, een tuinhuis en een royale overkapping. Een heerlijke plek voor tuinliefhebbers en buitenmensen.
Parkeren en schuur:
De woning beschikt over een eigen oprit. Achter de dubbele poort is ruimte voor het parkeren van nog eens drie auto’s. De naastgelegen schuur (huisnummer 68) heeft een oppervlakte van circa 32 m² en biedt diverse gebruiksmogelijkheden.
Deze verkoopdocumentatie is vrijblijvend, informatief en wijzigingen zijn voorbehouden. Hieraan kunnen geen rechten worden ontleend en zij dient slechts te worden gezien als een uitnodiging tot het doen van een bod of om in onderhandeling te treden. De Meetinstructie is gebaseerd op de NEN2580. De Meetinstructie is bedoeld om een meer eenduidige manier van meten toe te passen voor het geven van een indicatie van de gebruiksoppervlakte. De Meetinstructie sluit verschillen in meetuitkomsten niet volledig uit, door bijvoorbeeld interpretatieverschillen, afrondingen of beperkingen bij het uitvoeren van de meting.