Nieuw in verkoop: Wilhelminastraat 1C, 4701 GV Roosendaal
Nieuw in verkoop: Wilhelminastraat 1C, 4701 GV Roosendaal
Nieuw in verkoop: Wilhelminastraat 1C, 4701 GV Roosendaal
Nieuw in verkoop

Wilhelminastraat 1C, 4701 GV Roosendaal

€ 469.000,- k.k.

Beschrijving Wilhelminastraat 1C

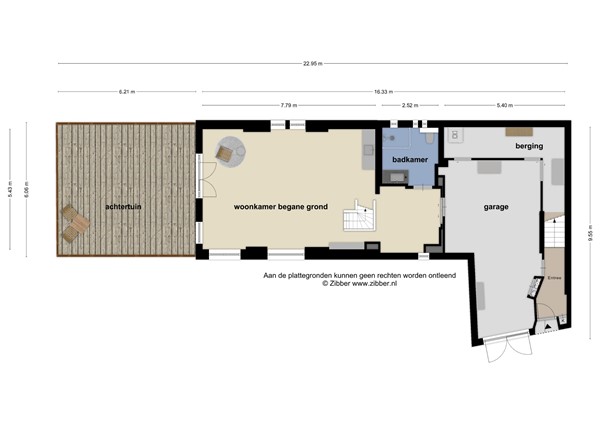
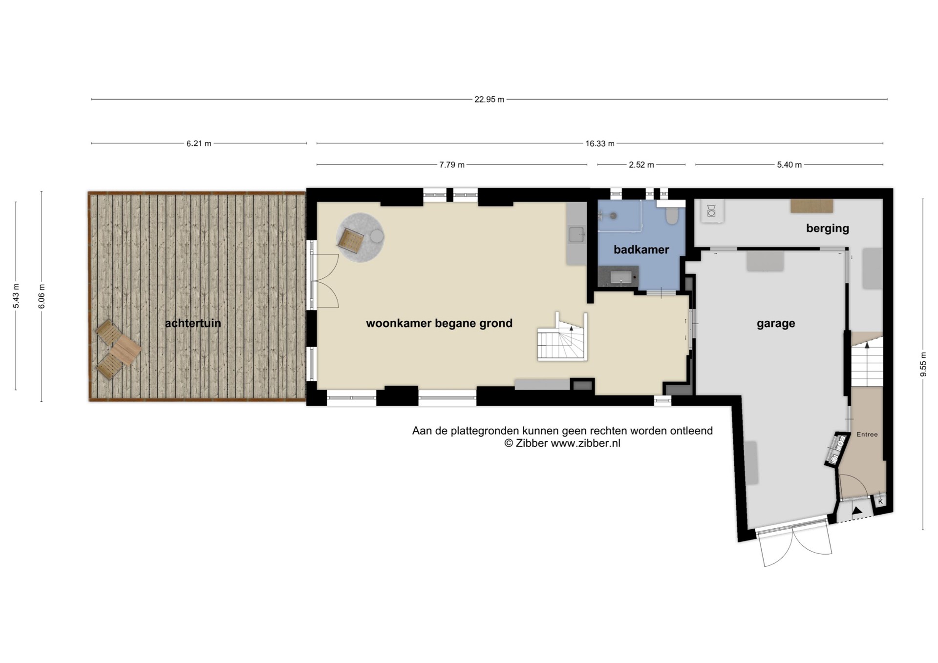
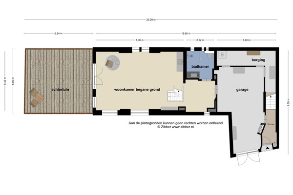
We nemen u graag mee door deze verrassend ruime en karakteristieke woning met dubbele bewoning en heel veel mogelijkheden zoals werk aan huis of mantelzorg. Met maar liefst 180 m² woonoppervlakte is het een huis waar sfeer en functionaliteit hand in hand gaan en waar u de vrijheid heeft om elke r...

Kenmerken

Type object Woonhuis, eengezinswoning, half vrijstaande woning
Bouwperiode 1942
Status Nieuw in verkoop
Aangeboden sinds Vrijdag 16 januari 2026

Wilhelminastraat 1C bekijken?

Wij plannen graag een bezichtiging met je in. Tijdens de bezichtiging vertelt een makelaar alles wat je wilt weten.

Sluiten

Recent bekeken